288C Compassvale Crescent - 1 Units for Sale
Map View
We’ve shown you all the matches
Almost there!
Refining your recommendations.
This may take a few seconds...
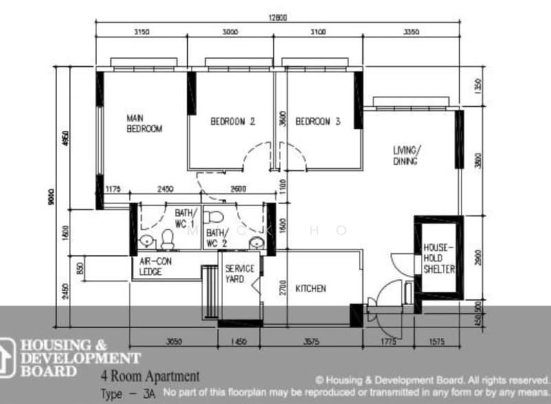
288C Compassvale Crescent
288C Compassvale Crescent 543288(D19) Hougang / Punggol / Sengkang
Summary
288C Compassvale Crescent
Read more
Project details
TypeHDB
Completion year2016
Tenure99-year Leasehold
No. of blocks1
No. of floors15
Total units84
Top facilities
Adult fitness stations
Car park
Drop off point
Eateries
DeveloperHousing & Development Board (HDB)
Explore PropertyGuru
Properties by ownership












